Задумали поменять старые окна? Сделать остекление балкона?
Хотите надолго и с оптимальным соотношением цена/качество?
Сделаем, даже если у Вас ограниченный бюджет!
Давайте разберемся из чего складывается цена на окно?
Давайте разберемся из чего складывается цена?
Фактор №1. Из какого пластика мы делаем окно?
Фактор №2. Какие стекла вставляем в раму?
Фактор №3. Какая фурнитура будет установлена?
Фактор №4. Какие дополнения к окнам нужны?
Пластиковые профили Рехау
Пластиковые профили Рехау
Мы рекомендуем ставить пластиковые окна из профилей Рехау (бренд с корнями из Германии), т.к. они показывают отличные эксплуатационные свойства и имеют минимальный процент брака
Мы рекомендуем ставить пластиковые окна из профилей Рехау (бренд с корнями из Германии), т.к. они показывают отличные эксплуатационные свойства и имеют минимальный процент брака
Некоторые отличительные особенности профилей Рехау:
- толщина внешних стенок 2,7 мм относится к типу "А" (повышенная звукоизоляция и теплосбережение);
- П-образное армирование с завальцовками установлено внутри пластика (квадратная металлическая труба толщиной 1,5 мм для белых и 1,8 мм для цветных окон) отвечает за достаточную жесткость и сопротивление ветровым ударам;
- оригинальные премиальные уплотнители Raucell из вспененного каучука на створках (не дубеют на морозе до -50 градусов, дают дополнительную защиту от продуваний);
- в рецептуре всего 7% мела и большая доля ПВХ-гранул, а это значит что окна имеют глянцевую поверхность за которой легко ухаживать, грязь не забивается в поры;
- экологически чистый пластик без фенолов, аммиака и прочей химии (гипоалергенные окна);
- в рецептуре достаточное количество диоксида титана, придающего белоснежность профилю, увеличивает стойкость к ультрафиолетовым солнечным лучам (профиль не пожелтеет даже через 50 лет);
- возможность установки закругленных и фигурных штапиков (красота и индивидуальность);
- широкая линейка устанавливаемых стеклопакетов: от 24 мм до 52 мм;
- все профили Рехау подходят по параметрам для климатической зоны Санкт-Петербурга и Ленинградской области.
Вся линейка профилей Рехау делается в Подмосковном городе Гжель на ультрасовременном немецком оборудовании.
Некоторые отличительные особенности профилей Рехау:
- толщина внешних стенок 2,7 мм относится к типу "А" (повышенная звукоизоляция и теплосбережение);
- П-образное армирование с завальцовками установлено внутри пластика (квадратная металлическая труба толщиной 1,5 мм для белых и 1,8 мм для цветных окон) отвечает за достаточную жесткость и сопротивление ветровым ударам;
- оригинальные премиальные уплотнители Raucell из вспененного каучука на створках (не дубеют на морозе до -50 градусов, дают дополнительную защиту от продуваний);
- в рецептуре всего 7% мела и большая доля ПВХ-гранул, а это значит что окна имеют глянцевую поверхность за которой легко ухаживать, грязь не забивается в поры;
- экологически чистый пластик без фенолов, аммиака и прочей химии (гипоалергенные окна);
- в рецептуре достаточное количество диоксида титана, придающего белоснежность профилю, увеличивает стойкость к ультрафиолетовым солнечным лучам (профиль не пожелтеет даже через 50 лет);
- возможность установки закругленных и фигурных штапиков (красота и индивидуальность);
- широкая линейка устанавливаемых стеклопакетов: от 24 мм до 52 мм;
- все профили Рехау подходят по параметрам для климатической зоны Санкт-Петербурга и Ленинградской области.
Вся линейка профилей Рехау делается в Подмосковном городе Гжель на ультрасовременном немецком оборудовании.
Три профиля комфорт-класса:
Три профиля комфорт-класса:
Blitz Design (60 мм)
от 6 530 руб.
Blitz Design
(60 мм)
от 6 530 руб.
Constanta Design (60 мм)
от 7 460 руб.
Constanta Design
(60 мм)
от 7 460 руб.
Grazio Design (70 мм)
от 7 640 руб.
Grazio Design
(70 мм)
от 7 640 руб.
Три профиля элит-класса:
Три профиля элит-класса:
Delight Design (70 мм)
от 7 870 руб.
Delight Design
(70 мм)
от 7 870 руб.
Intelio Design (80 мм)
от 9 050 руб.
Intelio Design
(80 мм)
от 9 050 руб.
Diamant Design (80 мм)
от 9 950 руб.
Diamant Design
(80 мм)
от 9 950 руб.
Варианты стеклопакетов
Варианты стеклопакетов
Стеклопакеты выбираются исходя из задачи, особенностей и бюджета. У каждого стеклопакета есть своя формула, состоящая из толщины, типа стёкол, заполняющего газа, дистанционных рамок
Стеклопакеты выбираются исходя из задачи, особенностей и бюджета. У каждого стеклопакета есть своя формула, состоящая из толщины, типа стёкол, заполняющего газа, дистанционных рамок
Между стеклами расположены дистанционные рамки. Они и образуют одну или две камеры стеклопакета.
Внешний полисульфидный и внутренний бутиловый герметики делают стеклопакеты герметичными, изолируют камеры от окружающей среды.
Внутри дистанционных рамок находится молекулярное сито или, проще говоря, адсорбер, впитывающий остаточную влагу из заполняющего газа.
Между стеклами расположены дистанционные рамки. Они и образуют одну или две камеры стеклопакета.
Внешний полисульфидный и внутренний бутиловый герметики делают стеклопакеты герметичными, изолируют камеры от окружающей среды.
Внутри дистанционных рамок находится молекулярное сито или, проще говоря, адсорбер, впитывающий остаточную влагу из заполняющего газа.
Стеклопакеты сегодня могут быть как на обычных стеклах, так и с дополнительными технологиями:
Напыления на стекла оксидов металлов
Напыления на стекла оксидов металлов
Повышает теплоизоляцию зимой, защиту от солнца, дает разные оттенки стеклам
Повышает теплоизоляцию зимой, защиту от солнца, дает разные оттенки стеклам
Дистанционные рамки-терморазрывы
Дистанционные рамки-терморазрывы
Повышают теплоизоляцию в краевой зоне, уменьшает вероятность конденсата
Повышают теплоизоляцию в краевой зоне,
уменьшает вероятность конденсата
Заполнение аргоном вместо воздуха
Заполнение аргоном вместо воздуха
Аргон блокирует конвективную передачу тепла и холода, повышает теплоизоляцию
Аргон блокирует конвективную передачу тепла и холода, повышает теплоизоляцию
Триплексы для снижения шума
Триплексы для снижения шума
Многослойные стекла дают взломостойкость и защиту от уличного шума
Многослойные стекла дают взломостойкость, прочность и защиту от уличного шума
Торговые названия стеклопакетов: "Теплопакет 4" от компании STiS и "X-One Multi" от компании РСК. Это два продукта, сочетающие в себе мультифункциональные стекла с напылениями, композитные дистанционные рамки и аргон. Применение таких стеклопакетов повсеместное, продукты являются массовыми и поэтому весьма доступны по деньгам широкому кругу потребителей
Торговые названия стеклопакетов: "Теплопакет 4" от компании STiS и "X-One Multi" от компании РСК. Это два продукта, сочетающие в себе мультифункциональные стекла с напылениями, композитные дистанционные рамки и аргон. Применение таких стеклопакетов повсеместное, продукты являются массовыми и поэтому весьма доступны по деньгам широкому кругу потребителей
Например:
- для окон в холодной квартире на Невском пр. есть смысл поставить шумоизолирующий двухкамерный "Теплопакет 4" с триплексом 7 мм в качестве наружного стекла и с двумя стеклами 4 мм с напылениями на рамках-терморазрывах и аргоном (3.3.1-12TSSArg-4i-14TSSArg-4i);
- для теплого остекления балкона на солнечной стороне часто используется двухкамерный "Теплопакет 4" (4SPGU-14TSSArg-4-14TSSArg-4) с мультифункциональным стеклом снаружи, терморамками и аргоном;
- для очень теплых квартир в новостройках можно использовать и однокамерный стеклопакет с энергосбережением (4-16TSS-4i) или обычный двухкамерный (4-10-4-10-4);
- для неотапливаемой веранды на даче можно использовать просто безкамерное листовое стекло 4 мм.
Примечательно, что иногда разница в деньгах между обычным стеклопакетом и "Теплопакетом 4" с одного окна составляет 2.000-3.000 руб. Сегодня все эти технологии являются массовыми продуктами, поэтому имеют умеренные цены.
Например:
- для окон в холодной квартире на Невском пр. есть смысл поставить шумоизолирующий двухкамерный "Теплопакет 4" с триплексом 7 мм в качестве наружного стекла и с двумя стеклами 4 мм с напылениями на рамках-терморазрывах и аргоном (3.3.1-12TSSArg-4i-14TSSArg-4i);
- для теплого остекления балкона на солнечной стороне часто используется двухкамерный "Теплопакет 4" (4SPGU-14TSSArg-4-14TSSArg-4) с мультифункциональным стеклом снаружи, терморамками и аргоном;
- для очень теплых квартир в новостройках можно использовать и однокамерный стеклопакет с энергосбережением (4-16TSS-4i) или обычный двухкамерный (4-10-4-10-4);
- для неотапливаемой веранды на даче можно использовать просто безкамерное листовое стекло 4 мм.
Примечательно, что иногда разница в деньгах между обычным стеклопакетом и "Теплопакетом 4" с одного окна составляет 2.000-3.000 руб. Сегодня все эти технологии являются массовыми продуктами, поэтому имеют умеренные цены.
К стеклопакетам также можно заказать некоторые дополнения, чтобы сделать окна более стильными и элегантными, подчеркнуть статус обьекта, сделать его более уникальным. Также существуют опции для увеличения прочности, снижения вероятности разрушения и их последствий
К стеклопакетам также можно заказать некоторые дополнения, чтобы сделать окна более стильными и элегантными, подчеркнуть статус обьекта, сделать его более уникальным. Также существуют опции для увеличения прочности, снижения вероятности разрушения и их последствий
Шпросы (декоративные раскладки, устанавливающиеся внутри стеклопакета)
Шпросы (декоративные раскладки, устанавливающиеся внутри стеклопакета)
Фальш-переплеты (декоративные элементы, приклеивающиеся снаружи)
Закаленные и термоупрочненные стекла вместо обычных для фасадного остекления
Шлифовка и полировка краев
для снижения вероятности термошока
Вжигаемые эмали (стемалит) для получения
цветного архитектурного стекла
Толстые стекла 6 мм, 8 мм, 10 мм и 12 мм
для максимальной прочности стеклопакета
Оконная фурнитура
Оконная фурнитура
К оконной фурнитуре относятся редуктор, петли, угловые передачи, средние прижимы, цапфы, ответные планки и прочие элементы обвязки створок
К оконной фурнитуре относятся редуктор, петли, угловые передачи, средние прижимы, цапфы, ответные планки и прочие элементы обвязки створок
ROTO NX (премиум-качество), Германия
FUTURUSS UPT (эконом-качество), Россия
Для больших створок (более 80 см шириной) настоятельно рекомендуем устанавливать более дорогую, но надежную Roto NX, т.к. у этой фурнитуры более прочные петли, нет подвижных пластиковых частей, лучше гальваническое покрытие, надежнее редуктор. Обратная сторона долговечности - цена. Из-за санкций ЕС производство в Подмосковном Подольске Roto NX остановлено, сегодня она поставляется из других стран.
Если заказчик ограничен в бюджете или очень редко открывает окна, то можно использовать и более простую российску фурнируту UPT. Оличительная её особенность - капролновые ответные планки. Но надо понимать, что цена соотвествует качеству, чудес от нее ждать не стоит.
Для загородных домов актуальна противовзломная фурнитура, то есть та, у которой имеются дополнительные цапфы и ответные планки, а сами цапфы изготовлены в виде гриба. Компания Roto предложила рынку такую фурнитуру под названием Roto NX WK2.
Примечательно, что иногда разница между Roto NX и UPT с одной створки окна составляет примерно 6.000 руб.
Для больших створок (более 80 см шириной) настоятельно рекомендуем устанавливать более дорогую, но надежную Roto NX, т.к. у этой фурнитуры более прочные петли, нет подвижных пластиковых частей, лучше гальваническое покрытие, надежнее редуктор. Обратная сторона долговечности - цена. Из-за санкций ЕС производство в Подмосковном Подольске Roto NX остановлено, сегодня она поставляется из других стран.
Если заказчик ограничен в бюджете или очень редко открывает окна, то можно использовать и более простую российску фурнируту UPT. Оличительная её особенность - капролновые ответные планки. Но надо понимать, что цена соотвествует качеству, чудес от нее ждать не стоит.
Для загородных домов актуальна противовзломная фурнитура, то есть та, у которой имеются дополнительные цапфы и ответные планки, а сами цапфы изготовлены в виде гриба. Компания Roto предложила рынку такую фурнитуру под названием Roto NX WK2.
Примечательно, что иногда разница между Roto NX и UPT с одной створки окна составляет примерно 6.000 руб.
Дополнения к окнам
Дополнения к окнам
Новые окна базовой комплектации можно дооснастить дополнительными элементами, чтобы повысить функционал, безопасность и комфорт при их использовании. Далеко не всем и не всегда нужны все опции, но как правило несколько дополнений Заказчики обязательно добавляют себе. Поэтому их списком выносим на рассмотрение при первой встрече-замере
Новые окна базовой комплектации можно дооснастить дополнительными элементами, чтобы повысить функционал, безопасность и комфорт при их использовании. Далеко не всем и не всегда нужны все опции, но как правило несколько дополнений Заказчики обязательно добавляют себе. Поэтому их списком выносим на рассмотрение при первой встрече-замере
Москитные сетки (обычные, антипыль, антикошка) в рамках разных цветов
Магнитная защелка на балконную
дверь и ручка-лепесток
Заглушки паза штапика
(белые или коричневые)
Уплотнители притвора Raucell EPDM
из вспененного каучука
Гребёнки
металлические и пластиковые
Трехступенчатое щелевое проветривание
для настройки точного воздушного потока
Tilt First-створки для детской безопасности
(сначала откидывание)
Замки и фрамужные ножницы
для детской безопасности
Ограничители и фиксаторы створки
Закругленные и фигурные штапики Рехау
Ручки Rehau Medea Plus
идеальная с прямоугольными штапиками
Ручки Roto Swing закругленной формы
идеальна с закругленными штапиками
Теплый подставочный профиль Triotherm вместо обычного пластикового
Премиальные подоконники ДПК
Moeller и Crystallit (Германия)
Решая задачу по остеклению важно выбирать правильные варианты и опции.
Только в таком случае окна будут радовать Вас долгие годы!
Решая задачу по остеклению важно выбирать правильные варианты и опции.
Только в таком случае окна будут радовать Вас долгие годы!
Оставьте заявку на бесплатную консультацию и
мы подберем для Вас оптимальную конфигурацию
Контакты
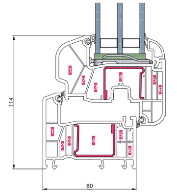
Рехау Blitz Design 60 мм
Бессменная классика и качество, доступное всем!
Оконная система BLITZ прекрасно впишется как в классическую, так и в современную обстановку. Она обладает элегантным внешним видом благодаря 15° скосам на лицевых поверхностях профиля. Форма окон из профилей BLITZ варьироваться в соответствии с Вашим архитектурным замыслом.
ОСНОВНЫЕ СИСТЕМНЫЕ ХАРАКТЕРИСТИКИ
Системная глубина/число камер: 60 мм / 3 камеры.
Теплоизоляция: Rопр = 0,64 м2°С/Вт.
Взломобезопасность: установка усиленных приборов запирания благодаря смещению оси приборного паза 13 мм.
Воздухо- и водонепроницаемость: надежная защита от сквозняков, пыли и воды благодаря двум контурам уплотнений (нахлест уплотнений по 8 мм снаружи и внутри).
Поверхность: высококачественная, идеально гладкая, удобная для ухода.
Рехау Delight Design 70 мм
Премиум-класс по отличной цене!
Оконная система Рехау Delight-Design относится к системам премиум-класса, способна удовлетворить самым высоким техническим и эстетическим требованиям элитного строительства. Оконные профили Рехау Delight-Design, являясь суперпозицией эксклюзивного дизайна и инновационных технологий, требуют минимального ухода и идеальны в эксплуатации. Окна из профилей Delight-Design придадут особое благородство внешнему облику дома и украсят любой интерьер.
Окна из профилей Delight-Design станут прекрасным выбором для нового строительства зданий класса «премиум», реконструируемых объектов, а также для домов с минимальным потреблением энергии. Они дают возможность эксклюзивного дизайна с использованием широчайшего выбора цветов и форм.
Система Delight-Design используется для изготовления окон и балконных дверей.
ОСНОВНЫЕ ХАРАКТЕРИСТИКИ:
Системная глубина / число камер: 70 мм / 5 камер.
Теплоизоляция: Rопр = 0,92 м2°С/Вт.
Взломобезопасность: установка усиленных приборов запирания благодаря смещению оси приборного паза на 13 мм.
Воздухо- и водонепроницаемость: надежная защита от сквозняков, пыли и воды благодаря двум контурам уплотнений (нахлест уплотнений по 7/8 мм снаружи / внутри).
Поверхность: высококачественная, идеально гладкая, удобная для ухода.
МАКСИМАЛЬНЫЙ КОМФОРТ
Многогранны, как современная архитектура. Окна из профилей Delight-Design придадут особое благородство внешнему облику дома и украсят любой интерьер. Чтобы подчеркнуть индивидуальность вашего дизайнерского решения, Рехау предлагает оконные створки в трех различных вариантах: элегантно закругленные, мягко скошенные или характерно смещенные. Окна из профилей Delight-Design это: абсолютно гладкая и блестящая поверхность профилей. Классическая смещенная поверхность створки или створка со скосами на лицевой поверхности. Закругленные профили створки глубиной 70 мм и коробки глубиной 80 мм. Элегантные 20 градусные скосы на видимых внешних поверхностях. Высокая теплоизоляция Rопр=0,92 м2*C/вт. Отличная теплоизоляция окон из профилей Delight-Design способствует созданию благоприятного микроклимата даже в холодное время года. Системная глубина 70 мм, а также два контура уплотнений окон из профилей Delight-Design не пропускают холод, сквозняк, задерживают пыль и влагу. Пять воздушных камер действуют как изолирующие барьеры между низкой наружной температурой воздуха и температурой в теплом помещении.
БОГАТСТВО ЦВЕТА
Окна из профилей Delight-Design примут активное участие в общем стилевом решении дома благодаря широчайшему спектру цветовых оттенков и декоративных исполнений. Мы вам предлагаем: классический белый или любой цвет по шкале RAL. Красивые эффекты глянцевых поверхностей. Декоративные покрытия с имитацией структуры дерева. Окна из профилей Delight-Design станут прекрасным выбором для нового строительства зданий класса «премиум», реконструируемых объектов, а также для домов с минимальным потреблением энергии. Они дают возможность эксклюзивного дизайна с использованием широчайшего выбора цветов и форм.
Система Delight-Design используется для изготовления окон и балконных дверей.
Окна из профиля Delight-Design подходят для установки в квартиры Санкт-Петербурга и загородные дома Ленинградской области.
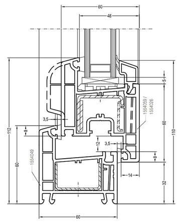
Рехау Intelio 80 мм
Умный комфорт с окнами INTELIO
Окна INTELIO — это система умного комфорта, которая позволит создать в доме оптимальный микроклимат и максимально повысить уровень шумоизоляции, а благодаря идеально гладкой HDF поверхности, которая предупреждает оседание и скапливание пыли, она избавит Вас от необходимости постоянного ухода за окнами.
ХАРАКТЕРИСТИКИ
Системная глубина: 80 мм
Количество камер: 6
Сопротивление теплопередаче: Rо пр. 0,98 м²°С/Вт
Размер непрозрачной части комбинации: 107 - 114 мм
Система уплотнений: 2-х контурная
Толщина заполнения: max 53 мм
Нахлёст уплотнений: Снаружи: 6 мм / Изнутри: 8 мм
Зазор притвора Снаружи и внутри: 3,5±0,5 мм
Материал: ПВХ без содержания кадмия, с использованием кальций-цинковых стабилизаторов
Система INTELIO обладает высочайшим уровнем звукоизоляции: она задерживает до 45 Дб, обеспечивая в помещении показатель в 30 Дб, что является нормой шума во время сна.
Почему INTELIO идеальны для панорамного остекления?
Благодаря увеличенной ширине и дополнительным внутренним рёбрам жёсткости (перегородкам между камерами) профили INTELIO обладают повышенной прочностью и позволяют изготовить створки большого размера для крупноформатного остекления. Так, если в большинстве представленных на рынке систем размер створки с двухкамерным стеклопакетом не может превышать 90×225 см, то INTELIO допускает ширину створки 110 см при высоте 240 см или шириной 140 см при высоте 150 см. В подобных конструкциях применяется усиленное армирование, а стеклопакет вклеивается в створку, что предотвращает её провисание.
Область применения
Профиль дает возможность выполнить окна в эксклюзивном дизайне с использованием широчайшего выбора цветов и декоров.
Система РЕХАУ Intelio используется для домов с минимальным потреблением энергииреконструируемых объектовстроительства зданий класса «премиум».
Благодаря конструктивному решению и малой видимой ширине профилей (107 мм) панорамные окна РЕХАУ INTELIO идеально сочетаются с трендовыми архитектурными решениями. При этом можно выбрать традиционную створку с классическим скошенным наплавом или дизайнерский вариант с плавным скруглением, а также любой цвет из десятков оттенков и фактур ламинации.
Рехау Diamant-Design 80 мм
Топовый пластиковый профиль Рехау на все случаи жизни.
Круче только теплый алюминий и вареные яйца :)
РЕХАУ DIAMANT-Design
Флагманский профиль DIAMANT венчает продуктовую линейку РЕХАУ: это самая теплая и тихая система в портфеле компании. Инновационная геометрия и особенности конструкции позволяют сохранить комфорт в помещении даже если за окном сильный мороз, порывистый ветер или шум городской магистрали. Надежная и прочная, эта профильная система станет идеальным выбором для современных домов и квартир, особенно в холодных регионах страны и на верхних этажах новостроек.
ОСНОВНЫЕ СИСТЕМНЫЕ ХАРАКТЕРИСТИКИ
Системная глубина/число камер: 80 мм / 7 камер.
Теплоизоляция: Rопр = 1,01 м2°С/Вт.
Взломобезопасность: установка усиленных приборов запирания благодаря смещению оси приборного паза 13 мм.
Уплотнения 3 контура.
Воздушные камеры в профиле окна, промежуток между ребрами жесткости в самой раме окна
Воздухо- и водонепроницаемость: надежная защита от сквозняков, пыли и воды благодаря трем контурам уплотнений (нахлест уплотнений по 8 мм снаружи и внутри).
Изоляция воздушного шума (Rw) окна — до 40 дБ(А).
Толщина стеклопакета max до 50 мм
Поверхность: высококачественная, идеально гладкая, удобная для ухода.
7 воздушных камер
Создают надежный барьер для холода, снижают потери тепла из помещения и затраты на отопление. Летом жара с улицы не проникнет внутрь, особенно если установлен кондиционер.
Индивидуальный дизайн
Три цвета в массе: белый, коричневый и антрацит, 200+ цветов в палитре ламинации, надежные конструкции больших размеров.
60+ лет службы
Надежные профили, произведенные в соответствии с мировыми стандартами качества.
Глянцевая HDF-поверхность
Оригинальная рецептура профиля для идеального глянца и белизны на протяжении долгих лет.
Рехау Constanta Design 60 мм
Особенностями этой системы является традиционная глубина 60 мм, но эффект дополнительного энергосбережения создаёт 4-х камерное строение профиля
Окна РЕХАУ CONSTANTA подходят для любых климатических условий, отлично справятся с задачей остекления как в квартире, так и в загородном доме.
ОСНОВНЫЕ СИСТЕМНЫЕ ХАРАКТЕРИСТИКИ
Системная глубина: 60 мм
Количество камер: 4
Сопротивление теплопередаче: Rо пр. 0,78 м²°С/Вт
Размер непрозрачной части комбинации: 110 - 112 мм
Система уплотнений: 2-х контурная
Толщина заполнения: 32-40 мм
Нахлёст уплотнений: Снаружи: 8 мм / Изнутри: 8 мм
Зазор притвора Снаружи и внутри: 3,5±0,5 мм
Материал: ПВХ без содержания кадмия, с использованием кальций-цинковых стабилизаторов
Особенности Рехау Constanta:
Высокая теплоизоляцияИсключительно высокой уровень комфорта. Окна не пропускают холод, сквозняк, задерживают пыль и влагуВариативный дизайн створокТри варианта исполнения створки: классическая с чёткими ребрами, с модным плавным скруглением, а также створка в плоскости коробки со стороны улицы200+ вариантов цветаБольшое разнообразие декоров для ваших окон, все плёнки прошли тщательный контроль качества при высоких нагрузкахРазумный выборЭнергоэффективная система с высокими технологическими характеристиками по разумной ценеБескомпромиссная функциональностьИз профиля CONSTANTA можно изготовить не только окна, но и двери. Также в ассортименте есть специально разработанная балконная створка.УниверсальностьРекомендован для реконструкций, ремонта старого жилья. Также оптимально подходит для домов с низким потреблением энергии
Рехау Grazio Design 70 мм
На защите тепла!
В основе разработки Рехау Grazio-Design лежат составляющие, которые позволяют обеспечить высокие энергоэффективные характеристики окна: это глубина 70 мм, дополнительная изолирующая воздушная камера между армированием и внутренней стенкой профиля «Thermo-Block» и возможность установки стеклопакета толщиной до 41 мм. Результатом является исключительно высокое сопротивление теплопередачи: 0,71 м2°С/Вт.
ОСНОВНЫЕ СИСТЕМНЫЕ ХАРАКТЕРИСТИКИ
Системная глубина / число камер: 70 мм / многокамерная.
Теплоизоляция: Rопр=0,71 м2 ◦С/Вт.
Взломобезопасность: установка усиленных приборов запирания благодаря смещению оси приборного паза 13 мм.
Воздухо- и водонепроницаемость: надежная защита от сквозняков, пыли и воды благодаря двум контурам уплотнений (нахлест уплотнений 7/8 мм внутри).
Поверхность: высококачественная, идеально гладкая, удобная для ухода.
Триплексы, толстые стекла,
защита от взлома и шума
Триплекс для окон — это многослойное безопасное стекло, состоящее из двух и более стеклянных полотен, соединённых полимерной прослойкой (ПВБ или ЭВА), либо прозрачной смолой.
Некоторые преимущества триплекса для окон:
Травмобезопасность. При ударе осколки остаются на поверхности плёнки, исключая возможность пораниться.
Высокая ударопрочность. Триплекс примерно в 6–8 раз прочнее обычного стекла.
Повышенный уровень звуко- и теплоизоляции. В сочетании с i-покрытием теплопотери зимой уменьшаются примерно на 15–20%, а летом окна меньше нагреваются от солнца.
Защита от воздействия UF-лучей. Триплекс способен поглощать до 99% вредного ультрафиолетового излучения.
Эстетичность. Комбинируя между собой различные виды стекла в триплексе (прозрачное, матовое, тонированное), можно получать интересные визуальные эффекты.
Триплекс бывает разным по прочности — это не разные виды стекла, а уровни защиты одного и того же материала. Чем больше слоёв и толще плёнка, тем выше класс.
Некоторые классы защиты и их области применения:
А. Ударопрочное. Используется для витрин, перегородок, окон для защиты от вандализма.
Б. Устойчиво к пробиванию. Применяется для окон первых этажей, входных групп.
В. Пуленепробиваемое. Останавливает пули от пистолета Макарова до винтовки СВД, выдерживает примерно 70 сильных ударов. Используется для банков, касс, охраняемых объектов.
Д. Взрывостойкое. Выдерживает эквивалент примерно 100–400 г тротила. Применяется для особо важных объектов, спецучреждений.
Для квартир и домов обычно достаточно классов A–Б, для банков и спецобъектов — В–Д.
Магнетронное напыление
Магнетронное напыление — метод нанесения на стекло специальных покрытий с помощью магнетронного распыления. Позволяет придать стеклу функциональные свойства: энергосбережение, солнцезащиту или и то, и другое одновременно (мультифункциональные свойства)
Технология.
Процесс магнетронного напыления заключается в том, что на стекло в специальной вакуумной камере наносятся напыления из разных материалов по принципу «слоёного пирога». Толщина каждого слоя — всего несколько нанометров, поэтому человеческим глазом их распознать «на срезе» невозможно.
Некоторые особенности процесса.
Напыление металлов и сплавов производят в среде инертного газа, как правило, аргона. Для напыления сложных соединений, например оксидов и нитридов, применяется реактивное магнетронное напыление: к плазмообразующему газу (аргону) добавляют реактивный газ (например, кислород или азот). В плазме магнетронного разряда реактивный газ диссоциирует, высвобождая активные свободные радикалы, которые взаимодействуют с осаждёнными на подложку распылёнными атомами, формируя химическое соединение.
Виды.
В зависимости от того, атомы каких металлов напыляют на стекло, получается разные виды покрытий:
Энергосберегающее — напыляют серебро.
Солнцезащитное — напыляют никель и хром.
Мультифункциональное — напыляют серебро, никель и хром.
Также напыление может представлять собой «пирог»: сначала напыляют подложку, потом функциональный слой, а в конце — защитный слой.
Свойства.
Некоторые свойства стёкол с магнетронным напылением.
Сочетание солнцезащитных и теплосберегающих характеристик. Например, мультифункциональное покрытие отражает нагретый воздух помещений обратно, способствуя сохранению комфортной температуры и позволяя экономить на отоплении.
Защита от ультрафиолета — в зависимости от «слоёв» напыления блокируется от 60 до 92% ультрафиолета.
Оптические свойства — например, многослойное напыление ионов металлов создаёт невидимую плёнку, которая «гасит» световую волну: падающий световой поток не отражается от стекла, а проходит через него.
Применение стёкла с магнетронным напылением используются в разных областях, например:
Остекление — мультифункциональные стёкла с магнетронным покрытием применяют в конструкциях с большой площадью остекления, например, балконах и панорамных окнах.
Изготовление стеклопакетов — селективные стёкла с «мягким» напылением для сохранности покрытия используют в составе стеклопакетов.
Обработка узорчатых стёкол — магнетронное напыление позволяет наносить покрытия на гладкое и узорчатое стекло.

Дистанционные рамки-терморазрывы
Дистанционная рамка для стеклопакетов – это элемент каркаса, который служит «полом» внутри стеклопакета, разделяя пространство между стеклами. Иначе ее называют спайсером. Помимо разделения, дистанционная рамка для стеклопакета частично выполняет поддерживающую функцию, потому что перенимает нагрузку от стекол, особенно тонких и легких. Она может быть цельной (изготавливаться под каждую оконную систему), или собираться с помощью уголков из небольших отрезков.
Виды.
Некоторые виды дистанционных рамок для стеклопакетов:
1) Алюминиевая — классический вариант, но имеет высокую теплопроводность, из-за чего через такую рамку может уходить много тепла.
2) Термозщитная (тёплая) — изготавливается из материалов с низкой теплопроводностью, например, нержавеющей стали с терморазрывом или специальных композитов. За счёт этого рамки значительно уменьшают теплопотери и предотвращают появление конденсата по краям стеклопакета.
3) Комбинированные — например, боковины сделаны из нержавейки (для лучшего склеивания со стеклом), а середина — по принципу термомоста — из пластика.
Критерии выбора.
При выборе дистанционной рамки для стеклопакета стоит учитывать следующие факторы:
1) Климатические условия — в холодных регионах стоит выбирать рамки с низкой теплопроводностью.
2) Тип стеклопакета — однокамерные или двухкамерные стеклопакеты могут требовать разной толщины и прочности рамки.
3) Экологические требования — некоторые материалы более экологичны и предпочтительны для жилых помещений.
4) Влагопоглотитель (так называемое молекулярное сито) внутри рамки — он отвечает за долговечность и предотвращение запотевания.
Цвета.
Производители дистанционных рамок предлагают несколько стандартных цветов на выбор: черная (RAL 9004); светло-серая (RAL 7035); темно-серая (RAL 7040); светло-коричневая (RAL 8003); темно-коричневая (RAL 8016); белая (RAL 9016). Также есть возможность покрасить рамки в индивидуально выбранный цвет по каталогу RAL.
Монтаж.
Правильно установленная дистанционная рамка служит долгие годы, но для этого необходимо соблюдать технологию монтажа стеклопакета. Если рамка повреждена или неправильно установлена, могут появляться дефекты в окне: запотевание, потеря герметичности, как следствие сквозняки, вода, грязь и даже трещины.
Торговые названия.
У компании STIS система терморазрыва имеет обозначение "TSS2". В "Теплопакете 4" используется теплая дистанционная рамка в составе улучшенной системы терморазрыва TSS2 второго поколения. Система TSS2 – запатентованная разработка компании STiS – обладает теплозащитой в 1 000 раз лучше, чем у алюминиевых рамок. При соблюдении регламентированных условий влажности в помещени, TSS2 защищает стеклопакет от промерзания по краям, образования наледи и увеличивает срок его службы.
У компании РСК система терморазрыва имеет обозначение "CHROMATECH ultra". Это современная дистанционная рамка «Тёплый край», состоящая из жесткого пластика и высококачественной нержавеющей стали. Её особая конструкция и материал придают рамкам отличные возможности для гнутья, высокую прочность каркаса и очень низкий коэффициент теплопроводности. Рамка может быть согнута почти на любых гибочных машинах с использованием стандартных инструментов. После гнутья рамка "CHROMATECH ultra" не теряет свои качественные характеристики и это не влияет на её продолжительность срока службы.
Аргон вместо воздуха внутри камер стеклопакета
Камеры стеклопакетов могут быть заполнены воздухом или интертным газом (аргоном или криптоном). Инертные газы обладают более низкой теплопроводностью, чем обычный воздух, что помогает повысить энергоэффективность окна.
Инертный газ действует как одеяло, уменьшая теплообмен между внутренним и внешним оконным стеклом, а именно блокирует так называемую конвективную передачу тепла и холода. Если камера заполнена обычным воздухом, то в ней начинаются конвективные явления: нагреваясь воздух поднимается вверх, попутно снимая в зимний период тепло с внутреннего стекла. Далее в самой верхней точке теплый воздух начинает охлаждаться и опускается вниз передавая тепло на внешнее стекло. В летний период наоборот тепло снимается с внешнего стекла и передается на внутреннее, тем самым помещение быстрее нагревается от солнца.
Чтобы этот эффект убрать как раз и нужен инертный газ, который намного более плотный и не подвержен эффекту конвекции. Инертный газ тяжёлый, его сложнее раскрутить, сложнее придать ему движение и запустить процесс перемешивания перепадом температур на плоскостях внутри и снаружи стеклопакета.
Зимой окна с газонаполнением сохраняют тепло в вашем доме и позволяют снизить расходы на отопление.
Летом, когда на улице стоит сильная жара, окна с аргоном - это просто спасение!
Инертный газ, как правило, используют в комбинации с энергоэффективным низкоэмиссионным стеклом, которое блокирует попадание солнечного тепла в ваш дом. В этом случае применение аргона позволяет повысить энергоэффективность стеклопакета. Испытания показали, что такие стеклопакеты сохраняют до 50-60% больше тепла, чем обычный стеклопакет.
Если в стеклопакете стёкла обычные, заполнять его газом особого смысла нет.
Вся эта энергосберегающая система работает только в связке с энергосберегающими низкоэмиссионным и мультифункциональным стеклами на внешних плоскостях стеклопакета + газ аргон внутри камер стеклопакета.
Инертный газ плотнее воздуха, поэтому зимой через стеклопакеты из дома на улицу теряется меньше тепла. Все тепло, полученное при отоплении, отражается от стекла и остается в доме.
Высокая плотность газа в жаркий летний день не позволяет проникать избыточному солнечному теплу в дом, что позволяет экономить на работе кондиционера.
Технология газонаполнения камеры стеклопакета.
Стеклопакеты заполняются аргоном при помощи специального прибора - Газоанализатора. Прибор накачивает стеклопакет газом и одновременно анализирует состав воздуха внутри камеры стеклопакета.
В дистанционную рамку вставляются специальные уголки в которых есть технологические отверстия для подключения газоанализатора. В комплекте с уголками идут заглушки для герметизации отверстий в уголках. В нижнее отверстие подключается шланг по которому будет подаваться газ для заполнения камеры стеклопакета. В верхнее отверстие подключается шланг по которому прибор будет анализировать давление и количество поступающего газа. При включении, газоанализатор начинает подачу аргона, при этом воздух из камеры стеклопакета вытесняется.
Аргон тяжелее воздуха, он остается внизу и выдавливает воздух вверх. Воздух поднимается и выходит через трубку газоанализатора. При достижении в камере стеклопакета уровня воздуха 8% (92% аргона) прибор автоматически отключает подачу газа. В этот момент газонаполнительные трубки быстро извлекают и в отверстия вставляют заглушки. Далее стеклопакет идет на вторичную герметизацию, где его замазывают финишным слоем герметика.
Как проверить наличие газа внутри стеклопакета.
Физически на «цвет, вкус и запах» наличие газа определить не получится. Прибор, который может провести сканирование и установить наличие газа в стеклопакете стоит 10.000 евро. Остаётся только довериться производителю. Ответственные производители пластиковых окон на стеклопакеты наклеивают специальные наклейки на которых содержится информация с формулой стеклопакета, где указано наличие аргона в камерах в сочетании с энергоэффективными стёклами.
Сейчас не один уважающий себя завод не будет лукавить и говорить о том, что он закачал аргон, а на самом деле не делать этого. Технология не является дорогостоящей и смысла кого-то обманывать и портить себе репутацию для производителя нет.
Косвенно подтверждает наличие аргона присутствие в стеклопакете уголков с клапанами для закачки газа о которых мы говорили выше.
Стоимость на заполнение аргоном.
По стоимости Аргон недорогой. Если для стандартного кухонного окна закачать в камеры аргон и добавить мультифункциональное стекло, то это добавит к общей стоимости изделия примерно 9%. Деньги, потраченные на дополнительные элементы энергосбережения, окупятся за счет снижения счетов за электроэнергию и отопление.
Преимущества аргона по сравнению с воздушным заполнением окон.
Газ снижает коэффициент теплопроводности (лучше сохраняет тепло и сводит к минимуму его потерю). Фактически, по данным Министерства энергетики, газообразный аргон может снизить теплопроводность окна до 50% по сравнению с окнами, заполненными воздухом, что приводит к предполагаемой экономии энергии до 12% для отопления и 18% для охлаждения/кондиционирования.
Однокамерные стеклопакеты с аргоном практически равны по характеристикам двухкамерным стеклопакетам, заполненных воздухом. Плюс, в первом случае вес конструкций получается значительно меньше.
Летом солнце будет меньше нагревать комнаты в доме. Особенно это актуально для тех у кого окна выходят на солнечную южную сторону, для пенсионеров и для людей плохо переносящих жару.
Аргон можно использовать в сочетании с низкоэмиссионными покрытиями для оптимизации энергоэффективности.
Не позволяет развиться конденсации. Воздух по своей природе содержит влагу, которая может превратиться в конденсат между стеклами пакета, что может привести к помутнению окон.
Аргоновое наполнение не вызывает коррозии мультифункционального и низкоэмиссионного покрытия стекол, как это может сделать кислородное наполнение.
Газ имеет природное происхождение, не имеет запаха, цвета и нетоксичен. Не загрязняет окружающую среду, безопасен.
Уменьшает искажение окна (отсутствует эффект линзы).
Аргоновые окна недороги в приобретении, но позволяют значительно экономить на энергопотреблении.Такие окна можно использовать в любом климате.
Эти окна доступны как для коммерческих зданий, так и для жилых домов.


































































